Rantai pengolahan limbah untuk aplikasi pengikis lumpur

Bagian utama dari rantai pengolahan limbah cair untuk pengikis lumpur meliputi rantai kerja, rantai penggerak, roda gigi penggerak, roda gigi yang digerakkan, roda gigi panduan, dan pelat pengikis. Rantai kerja dan rantai penggerak terdiri dari tautan rantai standar dan tautan pengikis, yang memiliki tegangan kerja yang lebih besar dan tegangan uji yang lebih kecil untuk memastikan operasi peralatan yang stabil.

Deskripsi

Pengikis Rantai Pengolahan Limbahdirancang dari bahan berdaya tahan tinggi untuk menahan tekanan dan korosi yang signifikan, memastikan kinerja pengikisan lumpur yang andal di tangki sedimentasi. Komponen penting ini dirancang untuk pengangkatan lumpur yang efisien, meningkatkan kualitas dan efektivitas keseluruhan proses pengolahan limbah.

Prinsip Kerja

Plat pengikis digerakkan oleh rantai di sepanjang dasar tangki sedimentasi, secara terus-menerus mengikis dan mengangkut lumpur ke tangki pengumpulan atau lubang pembuangan. Mekanisme ini cocok untuk semua jenis tangki sedimentasi, secara efektif menghilangkan partikel padat dari limbah dan meningkatkan efisiensi pengolahan.

Fitur Utama & Manfaat

  • Ketahanan Korosi & Ketahanan:Terbuat dari bahan yang tahan korosi, tahan lama, dan memiliki sifat pelumasan sendiri, menawarkan masa pakai terus-menerus hingga 10–15 tahun.
  • Operasi Halus & Aman:Beroperasi pada kecepatan pengikisan rendah, memastikan gangguan minimal pada aliran air dan menjaga sedimentasi optimal.
  • Struktur Sederhana & Andal:Mudah dioperasikan dan dirawat, desain ini meningkatkan efisiensi peralatan dan mengurangi biaya perawatan.
  • Pengangkatan Lumpur yang Efektif:Menjamin pengikisan sedimen yang aman dan tanpa gangguan, menjaga cadangan sistem lumpur, dan mencapai hasil pengangkatan lumpur yang luar biasa.

Aplikasi

  • Pabrik pengolahan limbah
  • Tangki sedimentasi industri
  • Fasilitas pengolahan air perkotaan
  • Proyek rekayasa lingkungan yang memerlukan pengangkatan lumpur yang efisien

Pilih Pengikis Rantai Pengolahan Limbah untuk pengangkatan lumpur yang andal, tahan lama, dan efisien di semua jenis tangki sedimentasi, memastikan operasi yang lancar, pengurangan biaya, dan peningkatan kualitas pengolahan air.

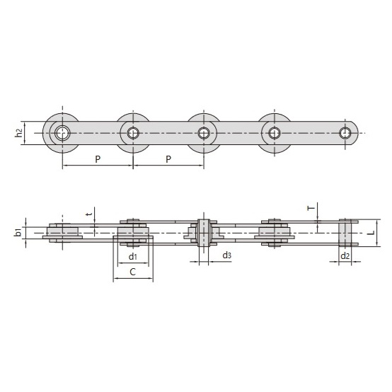
Parameter Teknis

Tabel Teknis Rantai Pengolahan Limbah Cair

Tabel Teknis Rantai Pengolahan Limbah Cair