Rantai konveyor berengsel ganda dengan sistem pengangkutan gerak universal

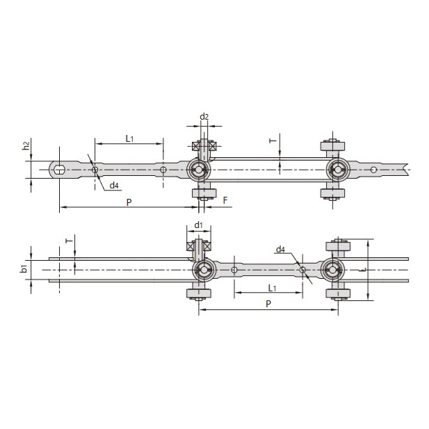
Rantai Konveyor Berengsel Ganda adalah perangkat mekanis yang terdiri dari dua rantai paralel dan sinkron yang bergerak. Setiap rantai terdiri dari sejumlah tautan penghubung yang dihubungkan oleh engsel.

Deskripsi

Rantai konveyor berengsel ganda dirancang untuk fleksibilitas tinggi dan kemampuan beradaptasi dengan beban. Struktur uniknya memungkinkan rantai berputar dengan fleksibel di bawah tekanan beban dan benturan, sehingga cocok untuk berbagai kondisi kerja dan persyaratan beban.

Fitur

  • Fleksibilitas:Setiap tautan dihubungkan oleh engsel, memberikan rantai fleksibilitas yang luar biasa untuk beradaptasi dengan berbagai lingkungan pembengkokan dan torsi.
  • Kapasitas beban:Roller berputar pada pin dan selongsong yang diperkeras, memungkinkan rantai menahan tekanan tinggi dan benturan untuk operasi berat yang andal.
  • Sinkronisasi:Dua rantai paralel bergerak secara sinkron, memastikan stabilitas dan efisiensi selama pengangkutan material.
  • Kemampuan beradaptasi:Jarak antar mata rantai dapat disesuaikan untuk memenuhi berbagai persyaratan kerja pada aplikasi yang berbeda.

Aplikasi

  • Digunakan secara luas di bidang industri seperti penanganan material dan transmisi garis produksi.
  • Ideal untuk lingkungan kerja yang kompleks dan kebutuhan transportasi yang memerlukan fleksibilitas dan kekuatan.
Parameter Teknis

Tabel Teknis Rantai Konveyor Berengsel Ganda

Tabel Teknis Rantai Konveyor Berengsel Ganda